La conception, l’installation et l’exploitation d’une chaufferie en container doivent respecter des normes et réglementations strictes pour garantir leur sécurité, leur efficacité et leur conformité environnementale. Ces chaufferies préfabriquées sont conçues pour répondre aux besoins de production de chaleur dans les secteurs industriels. Elles doivent se conformer aux normes ISO et aux exigences en matière de sécurité incendie. De plus, l'impact croissant de la réglementation RE 2020 modifie les critères de performance énergétique, incitant à l'intégration de solutions à faible empreinte carbone et à haute performance énergétique.
Quelles sont les normes applicables aux chaufferies en container ?
Normes ISO pour les containers
Les chaufferies en container sont basées sur des containers standardisés, généralement de 20 pieds ou 40 pieds, conformes aux normes ISO. Ces containers doivent répondre à des exigences spécifiques en matière de résistance, de dimensions et de sécurité. Voici quelques-unes des normes clés à respecter :
- ISO 668 : Spécifie les dimensions et la capacité des containers.
- ISO 1496 : Définit les critères de conception et de construction pour assurer leur robustesse.
- ISO 6346 : Couvre la codification des containers pour le transport international.
Ces containers sont conçus pour résister à des conditions climatiques variées et à des contraintes de transport.
Certification CSC et exigences de robustesse
La certification CSC (Container Safety Convention) est essentielle pour garantir la sécurité des containers lors de leur transport. Elle atteste que le container a été construit selon des normes strictes pour supporter les charges et les conditions de transport, y compris les forces dues au vent, à la mer et aux manipulations mécaniques. Cette certification est particulièrement importante pour les chaufferies en container utilisées dans des environnements industriels, où la sécurité et la robustesse sont primordiales.
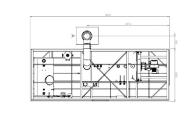
Capacités d’aménagement des containers en chaufferie
Les containers peuvent être aménagés pour accueillir une gamme d'équipements nécessaires à une chaufferie :
- Chaudières à vapeur pour la production industrielle.
- Générateurs de chaleur adaptés aux procédés spécifiques.
- Systèmes de régulation pour une gestion optimale de la température.
- Dispositifs de filtration pour le traitement des fumées et gaz.
Le dimensionnement des équipements est un facteur clé, car il détermine la capacité de production de chaleur de la chaufferie.L'espace interne doit permettre une installation et un entretien faciles tout en respectant les exigences de sécurité.
Comment la réglementation RE 2020 affecte-t-elle les chaufferies en container ?
Performance énergétique des modules containerisés
La réglementation RE 2020 impose des exigences strictes en matière de performance énergétique pour toutes les installations de chauffage, y compris les chaufferies en container. Les modules doivent être conçus pour optimiser le rendement énergétique, en intégrant des technologies telles que les chaudières haute performance, les récupérateurs de chaleur et les équipements utilisant des énergies renouvelables.
Les exigences RE 2020 pour les chaufferies en container incluent :
- Optimisation de l'efficacité énergétique : Utilisation de chaudières performantes.
- Intégration des énergies renouvelables : Pompe à chaleur, biomasse, etc.
- Réduction de l'empreinte carbone : Utilisation de combustibles à faible émission.
L'objectif est de réduire la consommation d'énergie tout en maintenant une production de chaleur suffisante pour les besoins industriels.
Normes d’isolation thermique et empreinte carbone
Les chaufferies en container doivent également respecter les normes d'isolation thermique, qui sont cruciales pour minimiser les pertes de chaleur et améliorer l'efficacité énergétique. L'empreinte carbone des chaufferies est un autre aspect important sous la réglementation RE 2020.
Conformité à la réglementation thermique en France
En France, les installations de chauffage doivent être conformes à la réglementation thermique en vigueur, y compris la norme RT 2012 et la réglementation RE 2020. Ces normes imposent des exigences strictes en matière d'efficacité énergétique et de réduction des émissions de CO2.
Les chaufferies en container doivent être dimensionnées et équipées de manière à répondre à ces critères, garantissant ainsi leur conformité à la réglementation thermique.
Quelles sont les normes de sécurité incendie et de ventilation pour une chaufferie en container ?
Normes de sécurité incendie pour chaufferies modulaires
Les chaufferies en container doivent répondre à des exigences rigoureuses en matière de sécurité incendie. Les équipements, les matériaux et la structure du container doivent être conçus pour résister au feu, avec des matériaux coupe-feu conformes aux normes de résistance au feu (classement REI 60). Les installations doivent également inclure des dispositifs de sécurité tels que des systèmes de détection incendie, des alarmes et des extincteurs automatiques pour garantir la sécurité des personnes et des biens.
Exigences de ventilation et détection de gaz
La ventilation est essentielle pour assurer une combustion optimale et éviter l'accumulation de gaz dangereux. Les chaufferies en container doivent être équipées de systèmes de ventilation conformes aux normes de sécurité, permettant de réguler l'air entrant et sortant du container.
- Ventilation mécanique contrôlée (VMC) pour une meilleure gestion de l'air.
- Capteurs de gaz pour la détection de CO2 et de monoxyde de carbone.
- Exigences pour les conduits d'évacuation pour garantir une circulation de l'air optimale.
Des dispositifs de détection de gaz doivent également être installés pour assurer la sécurité des opérateurs.
Matériaux coupe-feu et évacuation des fumées
Les matériaux utilisés pour la construction des chaufferies doivent être conformes aux exigences de sécurité incendie, y compris la résistance au feu. Les chaufferies en container doivent être équipées de systèmes de filtration et d'évacuation des fumées, permettant de traiter les gaz de combustion de manière efficace.
Nos chaufferies en container les plus populaires sur hellopro.fr


